Уютный дом в Дзержинском районе в 100 метрах от берега Волги
ЖК Идиллия
Варианты отделки
Чистовая
Класс
Комфорт
Тип дома
Кирпичный
Срок сдачи
2023
Небольшой уютный дом в Дзержинском районе в 100 метрах от берега Волги. Недалеко от дома расположен парк, в районе есть вся необходимая инфраструктура.
На дворовой территории дома расположены: детская площадка с игровым комплексом, площадка для отдыха, физкультурная площадка с тренажерами, также имеются парковочные места для временной стоянки автомобилей.
Стены из керамического блока с облицовкой керамическим лицевым кирпичем, крыша из гибкой черепицы, оконные заполнения из ПВХ профиля, высота помещений внутри квартиры 2,7 м. Высота помещений 5ого этажа до 3.70.
На дворовой территории дома расположены: детская площадка с игровым комплексом, площадка для отдыха, физкультурная площадка с тренажерами, также имеются парковочные места для временной стоянки автомобилей.
Стены из керамического блока с облицовкой керамическим лицевым кирпичем, крыша из гибкой черепицы, оконные заполнения из ПВХ профиля, высота помещений внутри квартиры 2,7 м. Высота помещений 5ого этажа до 3.70.
ЖК Идиллия в Ярославле
Инфраструктура
Идеальное место для жизни!
Экологичный район
Дом расположен на 1 линии от берега реки Волга, рядом находится парк с зелеными насаждениями
Простой доступ в центр города
Остановки общественного транспорта в пешей доступности, откуда можно уехать в любую часть города
Школа и детские сады рядом
Рядом средняя школа №60, больница №9, стоматологическое отделение
Видеонаблюдение
Видеонаблюдение в подъездах дома и на дворовой территории
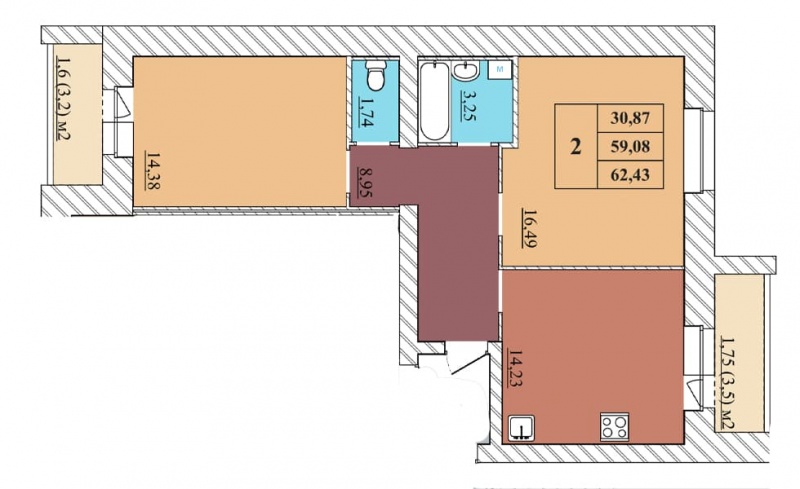
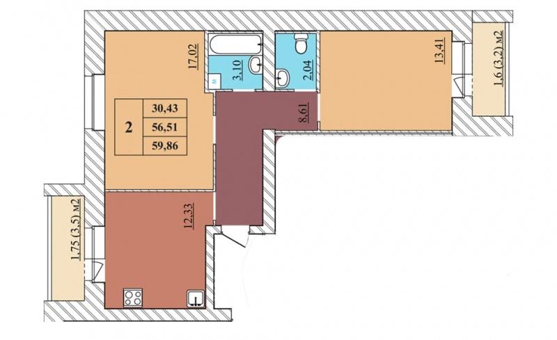
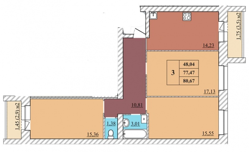
Квартиры в ЖК Идиллия
Квартиры от 4,17 млн до 8,11 млн ₽
1-комн. 41,2 м2
1-комн. 41,2 м2
1-комн. 43,15 м2
2-комн.57,2 м2
2-комн.62,35 м2
2-комн.60,2 м2
2-комн.64 м2
3-комн.80,3 м2
Скачайте каталог планировок в удобном формате, заполнив простую форму на сайте.
Хотите увидеть все планировки квартир?
Запишитесь на экскурсию ЖК прямо сейчас!
Заполните простую форму обратно связи и мы свяжемся с вами ближайшее время для уточнения деталей
Запишитесь на экскурсию
Режим работы:
Телефон и почта:
Адрес офиса:
Пн-Чт: с 9:30 до 19:00
Пт: с 9:30 до 17:00
Сб-Вс: по договоренности
Пт: с 9:30 до 17:00
Сб-Вс: по договоренности
г. Ярославль, ул. Республиканская д.61 (3 этаж)