Современный жилой комплекс, состоящий из 10-этажных домов класса «Комфорт»
ЖК Северные резиденции
Варианты отделки
Предчистовая
Класс
Комфорт
Тип дома
Кирпичный
Срок сдачи
2025—2027
ЖК «Северные резиденции» — это современный жилой комплекс, состоящий из 10-этажных домов класса «Комфорт», расположенный в Дзержинском районе. Каждый дом одноподъездный и насчитывает 90 квартир: 1,2,3-х комнатные. Индивидуальное газовое отопление. Дома имеют теплый подвал и чердак, на этажах предусмотрены нежилые помещения (кладовые).
Внутренний двор благоустроен: имеются детские и спортивные площадки, зоны отдыха, продуктовые магазины, предусмотрены парковочные места. развитая инфраструктура микрорайона: близи ЖК расположены детские сады и школы, поликлиники и больницы, сетевые магазины.
Внутренний двор благоустроен: имеются детские и спортивные площадки, зоны отдыха, продуктовые магазины, предусмотрены парковочные места. развитая инфраструктура микрорайона: близи ЖК расположены детские сады и школы, поликлиники и больницы, сетевые магазины.
ЖК Северные резиденции в Ярославле
Инфраструктура
Идеальное место для жизни!
Транспортная доступность
Остановки общественного транспорта — удобная транспортная доступность.
Школы и детские сады
Вблизи ЖК расположены детские сады и школы, поликлиники и больницы.
Сосновый бор
Неподалеку от ЖК парк, Павловская березовая роща и берег реки Волги.
Всё нужное рядом
В 5 минутах от ЖК находятся крупные торговые центры, магазины и кафе.
Квартиры в ЖК Северные резиденции
Квартиры от 4,55 до 8,71 млн ₽
1-комн. 45,54 м2
1-комн. 45,63 м2
1-комн. 37,85 м2
2-комн. 56,30 м2
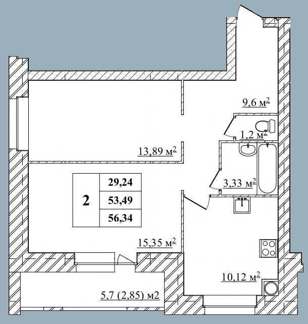
2-комн. 56,34 м2
3-комн. 77,82 м2
Скачайте каталог планировок в удобном формате, заполнив простую форму на сайте.
Хотите увидеть все планировки квартир?
Запишитесь на экскурсию ЖК прямо сейчас!
Заполните простую форму обратно связи и мы свяжемся с вами ближайшее время для уточнения деталей
Запишитесь на экскурсию
Режим работы:
Телефон и почта:
Адрес офиса:
Пн-Чт: с 9:30 до 19:00
Пт: с 9:30 до 17:00
Сб-Вс: по договоренности
Пт: с 9:30 до 17:00
Сб-Вс: по договоренности
г. Ярославль, ул. Республиканская д.61 (3 этаж)