Для тех, кто давно мечтает о своем жилье
ЖК Яковлевское
Варианты отделки
Предчистовая
Класс
Комфорт
Тип дома
Кирпичный
Срок сдачи
2025
ЖК «Яковлевское» — это место, где приоритет отдаётся комфорту и качеству жизни. Комплекс относится к классу «комфорт», что подразумевает высокий стандарт проживания для каждого жильца.
В ЖК «Яковлевское» представлены разнообразные апартаменты, которые подойдут как одиноким людям, так и семьям с детьми.
Дом строится из высококачественного керамического кирпича, что обеспечивает отличную тепло- и звукоизоляцию.
Входные группы выполнены по дизайнерскому проекту, что создаёт приятное первое впечатление от комплекса.
В ЖК «Яковлевское» представлены разнообразные апартаменты, которые подойдут как одиноким людям, так и семьям с детьми.
Дом строится из высококачественного керамического кирпича, что обеспечивает отличную тепло- и звукоизоляцию.
Входные группы выполнены по дизайнерскому проекту, что создаёт приятное первое впечатление от комплекса.
ЖК Яковлевское в Ярославле
Инфраструктура
Идеальное место для жизни!
Транспортная доступность
Остановки общественного транспорта — удобная транспортная доступность.
Всё нужное рядом
В шаговой доступности школы, детские сады и магазины.
Сосновый бор
Сосновый бор и свежий воздух, атмосфера спокойствия вблизи Яковлевско-Благовещенского храма.
Безопасная и комфортная среда
Огороженная территория, газоны, лавочки и детская площадка.
Квартиры в ЖК Яковлевское
Квартиры от 4,64 млн до 7,64 млн ₽
1-комн. 40,93 м2
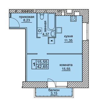
1-комн. 42,65 м2
1-комн. 44,75 м2
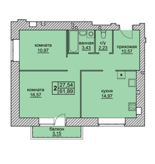
2-комн. 61,89 м2
2-комн. 61,89 м2
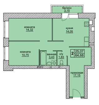
2-комн. 64,68 м2
Скачайте каталог планировок в удобном формате, заполнив простую форму на сайте.
Хотите увидеть все планировки квартир?
Запишитесь на экскурсию ЖК прямо сейчас!
Заполните простую форму обратно связи и мы свяжемся с вами ближайшее время для уточнения деталей
Запишитесь на экскурсию
Режим работы:
Телефон и почта:
Адрес офиса:
Пн-Чт: с 9:30 до 19:00
Пт: с 9:30 до 17:00
Сб-Вс: по договоренности
Пт: с 9:30 до 17:00
Сб-Вс: по договоренности
г. Ярославль, ул. Республиканская д.61 (3 этаж)